CAPTURE IMMERSIVE – Scan 3D BIM
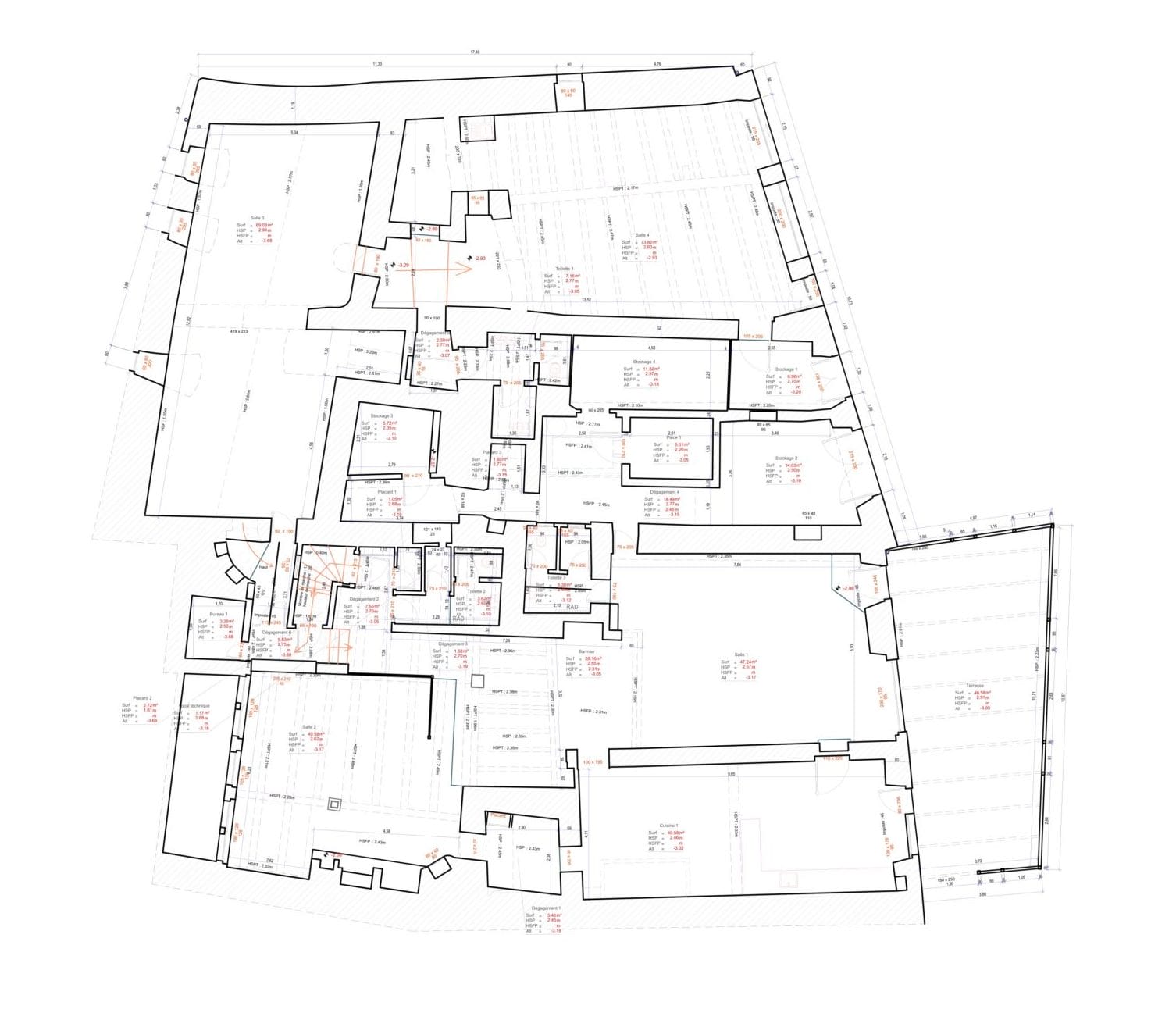
CAPTURE IMMERSIVE est le spécialiste romand des solutions visuelles innovantes pour le secteur AEC (Architecture, Ingénierie, Construction) et les entreprises B2B. Notre cœur de métier : la capture de précision d’espaces via scan 3D (LiDAR, photogrammétrie) et la production de livrables techniques (maquettes BIM, plans DWG) répondant aux standards suisses.
Nous créons aussi des visites virtuelles 3D augmentées sur-mesure (Matterport, tags interactifs PDF, e-commerce, vidéo) et des suivis de chantier 360° (avant/après, drone, photo produit).
Notre mission : transformer vos environnements en expériences digitales interactives, accroître votre visibilité, sécuriser vos projets et valoriser votre image locale !
Pour Vaud, Valais, Fribourg et toute la Suisse romande.
